Australia

# Sold $2,900,000-$3,100,000

270 Goodes Road, Arding, NSW 2358

# Location

Description

“Hopetoun” A Premier Agricultural Haven in Uralla Welcome to "Hopetoun," a stunning 277-acre farm situated at 270 Goodes Road, Uralla, NSW 2358. This remarkable property combines productivity with luxury, offering:

- 20 acres of centre pivot irrigation with a 20 megalitre irrigation license and a 50 megalitre allocation - 11 megalitre spring-fed irrigation dam along with 10 additional dams, 6 of which are also spring-fed - 12 well-watered paddocks, each equipped with dams and troughs - Electric high flow stock and domestic bore, providing a reliable water supply, with underground water being a notable feature - All-steel fencing and improved pastures, capable of supporting 3 breeding ewes per acre - 3-phase power supplied to multiple large storage sheds - Outstanding infrastructure including steel sheep and cattle yards, and 3 horse stable sheds

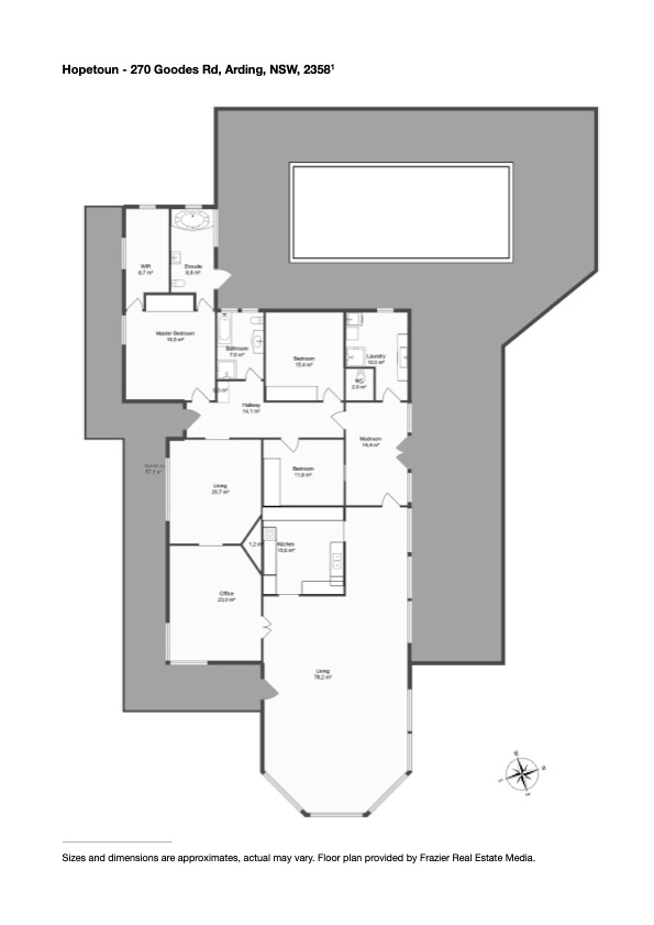
Residence Features - The exquisite four-bedroom, three-bathroom home spans 260 square meters - North-facing solar passive living for optimal natural light and energy efficiency - Gas central heating and pressed metal ceilings for a touch of classic elegance - Heated swimming pool with a brand-new 22kw heat pump - Tennis court for recreational activities - Full-length veranda, perfect for relaxation and entertaining - Robust 14kw solar system ensuring sustainable energy use

“Hopetoun” is a rare gem, offering unparalleled agricultural capabilities alongside top-tier residential amenities. Whether you’re looking to expand your farming operations or seeking a tranquil rural lifestyle, this property is your ideal choice. Conveniently located just 6-minutes from Uralla's central hub and 15-minutes from Armidale Airport (Regional Business Centre).

Contact us today to arrange a viewing and experience the exceptional “Hopetoun” firsthand.

View More #

Floor Plans

Location

  • Contact the agency

    To request an inspection

  • # Call # Email

Nathan Whitton

Agent Name

# Report Listing

Looking for a property?

  • Top listings
  • Investment
  • Development
  • Personal home
  • Price reports
  • Suburb reports

Do you own a property?

  • Place a free listing
  • Services for private advertisers
  • Guide to selling your home
  • Insurance
  • Improve the photos of your listing
  • Value your property for free

Are you a real estate proffesional?

  • Publish your agencies properties
  • Already a client? Log into your account
  • Advertising on Australian Real Estate
  • Australian Real Estate data technology for property insights
  • Real Estate courses